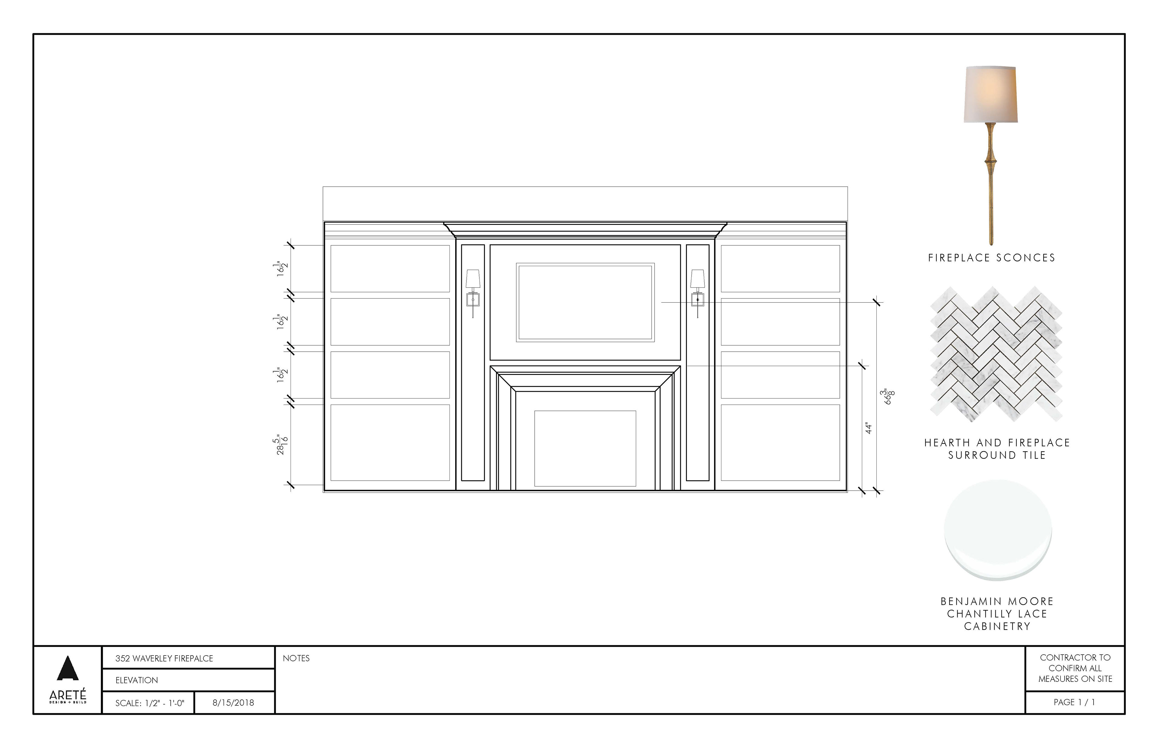
A selection of design Boards produced for luxury home renovations. Layout and production by Tripti Prasad, designed by Zoé Austin for Areté Design Build.